Πωλείται αγροτεμάχιο με άδεια δόμησης σε ισχύ

Περιγραφή Ακινήτου
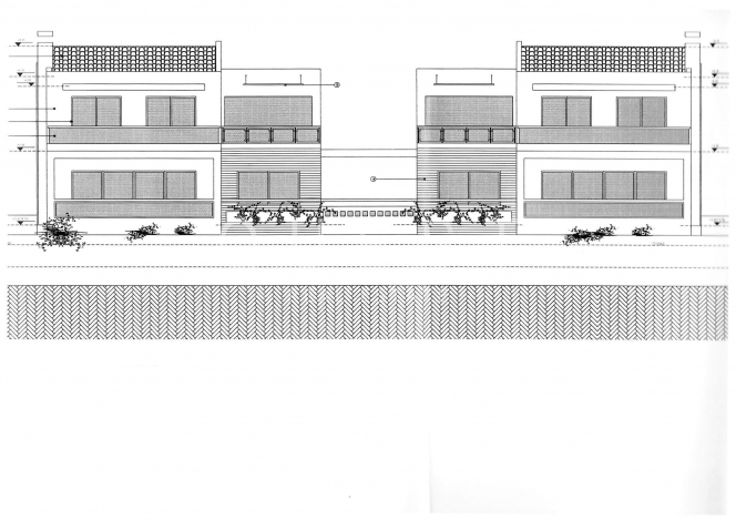
Κωδικός ακινήτου: 11307 - Αλεξανδρούπολη Νέα Χιλή ΠΩΛΕΙΤΑΙ οικοδομήσιμο επίπεδο αγροτεμάχιο συνολικής επιφάνειας 5510 τ.μ. Διαθέτει πρόσοψη 64 μέτρα απόσταση από θάλασσα 1000 μέτρα απόσταση από πόλη 500 μέτρα απόσταση από χωριό 500 μέτρα Τιμή: 160.000 € Πωλείται αγροτεμάχιο σε εξαιρετικό σημείο στη Νέα Χιλη Αλεξανδρούπολης συνολικού εμβαδού 5510 τμ.. Δίνει τη δυνατότητα ανέγερσης κατοικιών συνολικού εμβαδού 213 τμ και δίνεται με άδεια δόμησης σε ισχύ έως τα τέλη του 2022. Η άδεια έχει εκδοθεί με τον σχεδιασμό 2 ανεξάρτητων διώροφων κατοικιών με ανεξάρτητες θέσεις στάθμευσης και πισίνα. Βρίσκεται σε ιδανικό σημείο με ανοιχτό ορίζοντα και θέα όλο το θρακικό πέλαγος. Ιδανικό για ιδιοκατοίκηση.
Ημερομηνία Τροποποίησης
17-09-2025
Συντελεστής δόμησης
0.00
Συντελεστής κάλυψης
0.00
Επιτρεπόμενο Ύψος
0
0μ.
Βάθος
0
Χρήση Γης
Κατοικίες
Πρόσβαση
Χωματόδρομος
Κλίση
Επίπεδο
Προσανατολισμός
Απροσδιόριστο
Θέα
Ανοιχτός ορίζοντας
Άρτιο
Οικοδομήσιμο
Με αδεια δόμησης
0μ.
1000μ.
500μ.
500μ.
Συγκοινωνία
Δεν υπάρχει

Διαχειριστής Ακινήτου

Ενδιαφέρομαι

CAPTCHA
This question is for testing whether or not you are a human visitor and to prevent automated spam submissions.

Συνεργαστείτε μαζί μας!

Βρείτε το ακίνητο που ψάχνετε ή αναθέστε μας το ακίνητό σας.

Συνεργάτες και πελάτες μας

προτιμούμε τους καλύτερους γιατί μας εμπιστεύονται οι καλύτεροι.

Σχετικά με εμάς

Η Quest real estate έχει έδρα την Αλεξανδρούπολη και ειδικεύεται στην παροχή διαμεσολάβησης για την αγοραπωλησία ή μίσθωση ακινήτων στην περιοχή της Θράκης και ειδικότερα στο Ν. Έβρου.

Επικοινωνείστε μαζί μας

Ελευθερίου Βενιζέλου 40, Αλεξανδρουπολη 68100

Συνδεθείτε μαζί μας